Design 302 Term Project
Year 3 :: Semester 2
Spring 2024
Comprehensive design of single parent housing apartments in Bed-Stuy, Brooklyn.
Design 302 Term Project
Year 3 :: Semester 2
Spring 2024
Comprehensive design of single parent housing apartments in Bed-Stuy, Brooklyn.
Block Concept Plan
2 Bedroom Unit Plan and Section Layout
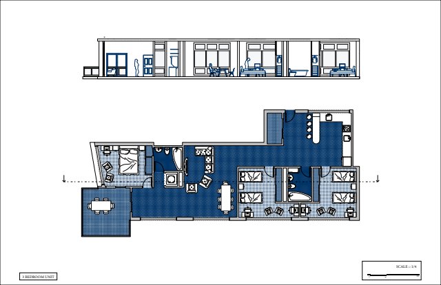
3 Bedroom Unit Plan and Section Layout