Design 301 Term Project
Year 3 :: Semester 1
Fall 2023
Comprehensive design of a public marketplace at Sara D. Roosevelt Park
Design 301 Term Project
Year 3 :: Semester 1
Fall 2023
Comprehensive design of a public marketplace at Sara D. Roosevelt Park
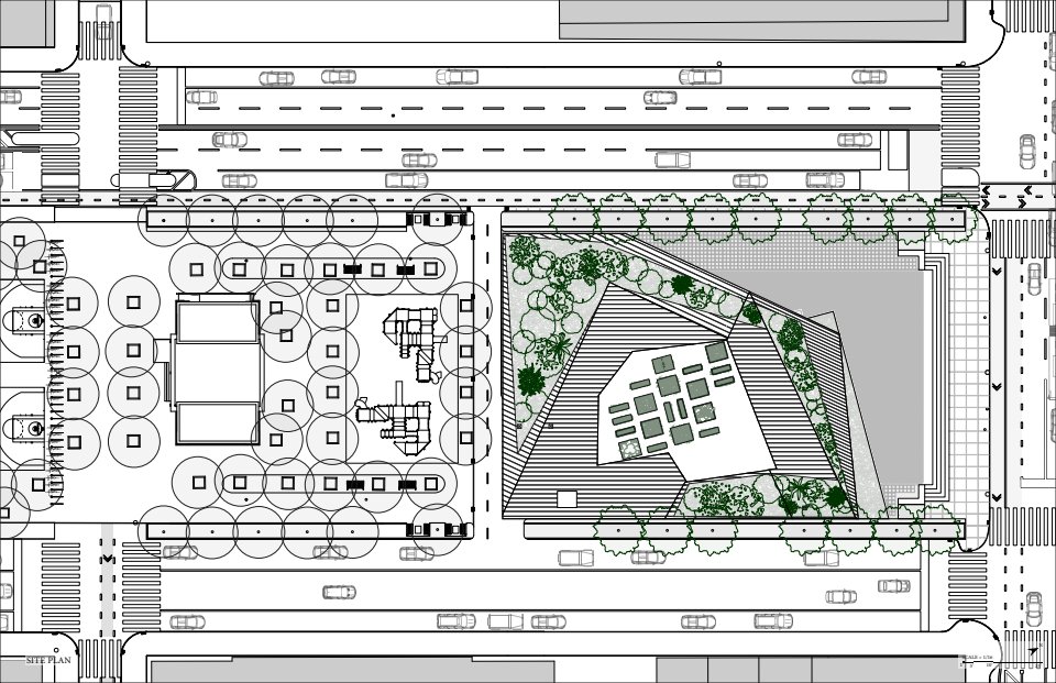
Site plan of market design at Sara D. Roosevelt Park in the Lower East Side of Manhattan
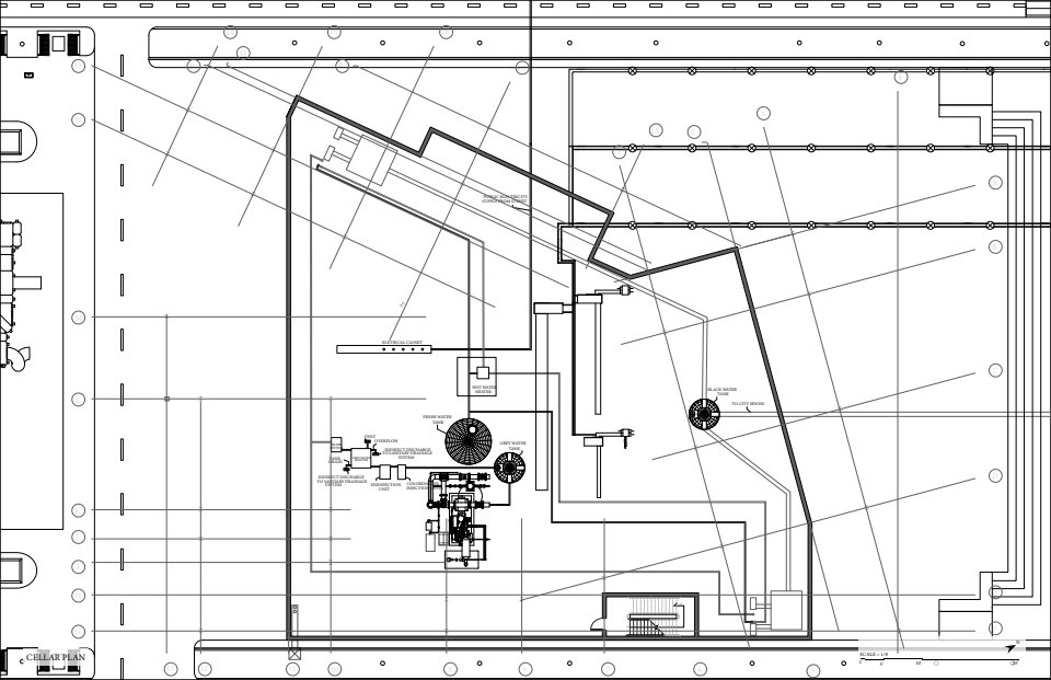
Cellar plan :: including the MEP equiptment needed for composting toilets, conditioned spaces, unconditioned spaces, and geothermal wells
Ground floor plan :: including a marketspace, experimental garden, indoor seating, an event space, lavatories, and outdoor parking
Second floor plan :: including community learning classrooms, staff offices, staff coat room, indoor dining, kitchen, lavatories, adn extention of the fist floor event space
Roof plan :: including an extensive green rood and zinc panel roofing
Site sections of market design at Sara D. Roosevelt Park in the Lower East Side of Manhattan
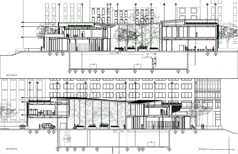
Building sections of market design at Sara D. Roosevelt Park in the Lower East Side of Manhattan
Building sections of market design at Sara D. Roosevelt Park in the Lower East Side of Manhattan
North elevation of market design at Sara D. Roosevelt Park in the Lower East Side of Manhattan
South elevation of market design at Sara D. Roosevelt Park in the Lower East Side of Manhattan
East elevation of market design at Sara D. Roosevelt Park in the Lower East Side of Manhattan
West elevation of market design at Sara D. Roosevelt Park in the Lower East Side of Manhattan
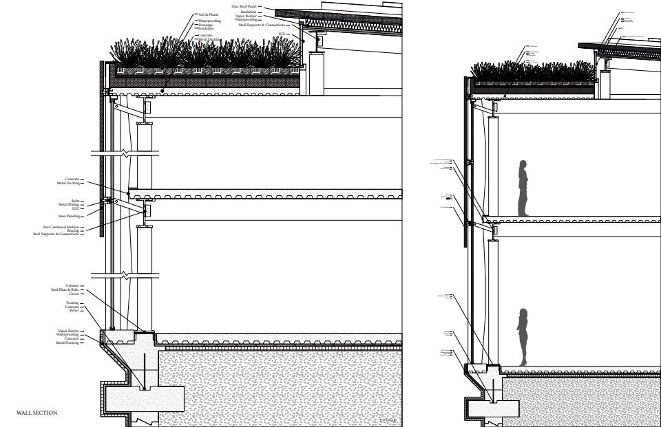
Wall section of building, showing the connection between the mullions, curtain wall, and metal rain screen
Rendered axonametric detail of a chunk of the building
Perspective views from the courtyard, market, and double height event space
Exterior perspective views
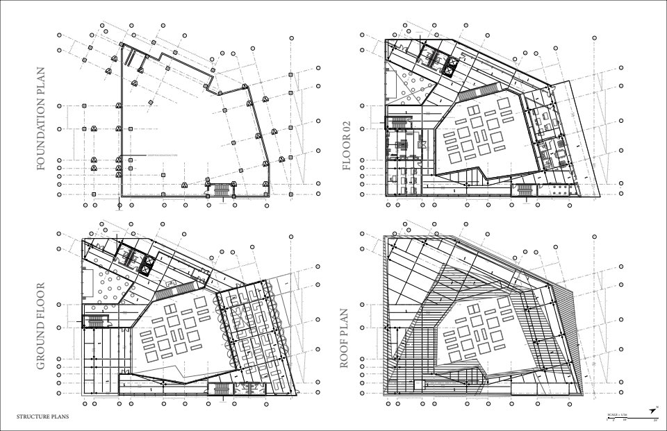
Structural plans for the proposed market
Structural diagram for the proposed market
MEP plans for the proposed market
Detail diagrams for the proposed market
Analysis of heating, cooling, and direct sunlight/ radiant heating hours
Material and ventilation systems based on environmental analysis
Building strategies encorporated onto the design
Photographs of the physical model
Photographs of the physical model
Photographs of the physical model
Photographs of the physical model
Photographs of the physical model
Photographs of the physical model