Design 102 Final
Year 2 :: Semester 1
Fall 2022
Analysis and Addition to Astoria Public Park Pool
Design 102 Final
Year 2 :: Semester 1
Fall 2022
Analysis and Addition to Astoria Public Park Pool
Plan for new addition to the Astoria Pool site.
Roof Plan for new addition to the Astoria Pool site.
Elevations for new addition to the Astoria Pool site.
Sections for new addition to the Astoria Pool site.
Interior renders for new addition to the Astoria Pool site.
Exterior renders for new addition to the Astoria Pool site.
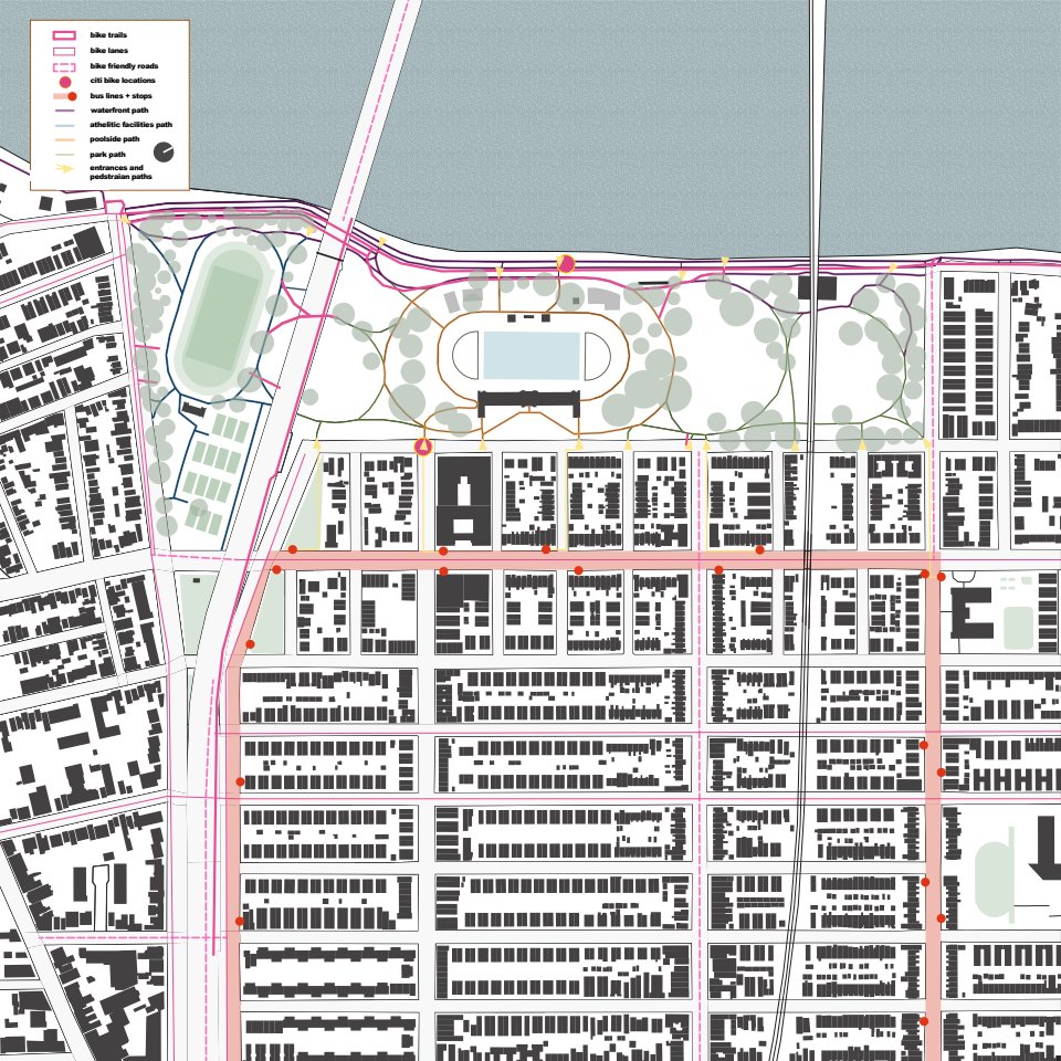
District plan of Astoria Pool, located in Astoria, Queens, depicting public transit lines (subway and busses), and accessible lanes for bicycles. The gradient of the buildings is determined by population density. (Worked with 2 partners)
Site plan of Astoria Pool, depicting the access points, and paths into the park, as well as citi bike stations, and bus stops. (Worked with 2 partners)